
产品名称:Y43H-16C蒸汽减压阀
产品标签:减压阀,蒸汽减压阀
更新时间:2019/5/3 14:04:56
上一个产品:没有资料
下一个产品:YZ11支管式减压阀
在线客服:
在线订购:在线订购
产品详情
Y43H先导活塞式蒸汽减压阀产品概述:
由主阀和导阀两部分组成。主阀主要由阀座、阀阀盘、活塞、缸套、弹簧等零件组成。导阀主要由阀座、阀瓣、膜片、弹簧、调理弹簧等零件组成。Y43H活塞式蒸汽减压阀在通俗减压阀基础上作了很大刷新,加大了活塞面积,改变了节约结构。改变了密封形式,加大了过流面积等等,从而在提高迅速度、流量、寿命等方面大大改善了性能。通过调理调理弹簧压力设定出口压力,使用膜片传感出口压力转变,通过导阀启闭驱动活塞调理主阀节约部位过流面积的巨细,实现减压稳压功效。Y43H活塞式蒸汽减压阀主要用于蒸汽管路,超减压稳压作用。
主要手艺参数
公称压力(MPa)
|
1.6
|
2.5
|
4.0
|
6.4
|
10.0
|
16.0
|
|||||
壳化试验压力(MPa)
|
2.4
|
3.75
|
6.0
|
9.6
|
15.0
|
24
|
|||||
密封试验压力(MPa)
|
1.6
|
2.5
|
4.0
|
6.4
|
10.0
|
16.0
|
|||||
最高入口压力(MPa)
|
1.6
|
2.5
|
4.0
|
6.4
|
10.0
|
16.0
|
|||||
出口压力规模(MPa)
|
1.0-1.0
|
0.1-1.6
|
0.1-2.5
|
0.5-3.5
|
0.5-35
|
0.5-45
|
|||||
压力特征误差(MPa)△P2P
|
GB12246-1989
|
||||||||||
流量特征误差(MPa)△P2G
|
GB12246-1989
|
||||||||||
最小压差(MPa)
|
0.15
|
0.15
|
0.2
|
0.4
|
0.8
|
1.0
|
|||||
渗漏量
|
GB12245-1989
|
||||||||||
*.壳体试验不包括膜片、顶盖。
流量系数Cv
DN
|
15
|
20
|
25
|
32
|
40
|
50
|
65
|
80
|
100
|
125
|
150
|
200
|
250
|
300
|
350
|
400
|
500
|
Cv
|
1
|
2.5
|
4
|
6.5
|
9
|
16
|
25
|
36
|
64
|
100
|
140
|
250
|
400
|
570
|
780
|
1020
|
1500
|
主要零件质料
零件名称
|
零件质料
|
阀体 阀盖 底盖
|
WCB
|
阀座 阀盘
|
2Cr13
|
缸套
|
2Cr13/铜合金
|
活塞
|
合金铸铁
|
导阀座 导阀杆
|
2Cr13
|
主阀弹簧
|
1Cr18Ni9Ti
|
导阀主弹簧
|
50CrVA
|
调理弹簧
|
60Si12Mn
|
![]() |
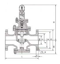
主要形状尺寸
公称通径
DN |
外 形 尺 寸
|
|||
L
|
H
|
Hl
|
||
1.6/2.5MPa
|
4.0MPa
|
|||
15
|
160
|
180
|
295
|
90
|
20
|
160
|
180
|
330
|
98
|
25
|
180
|
200
|
330
|
110
|
32
|
200
|
220
|
330
|
110
|
40
|
220
|
240
|
345
|
125
|
50
|
250
|
270
|
345
|
125
|
65
|
280
|
300
|
350
|
130
|
80
|
310
|
330
|
385
|
160
|
100
|
350
|
380
|
385
|
170
|
125
|
400
|
450
|
400
|
200
|
150
|
450
|
500
|
415
|
210
|
200
|
500
|
550
|
475
|
240
|
250
|
650
|
525
|
290
|
|
300
|
800
|
580
|
335
|
|
350
|
850
|
620
|
375
|
|
400
|
900
|
660
|
405
|
|
450
|
900
|
730
|
455
|
|
500
|
950
|
750
|
465
|
|
公称通径
DN |
外 形 尺 寸
|
|||
L
|
H
|
Hl
|
||
6.4MPa
|
10.0/16.0MPa
|
|||
15
|
180
|
180
|
305
|
105
|
20
|
180
|
200
|
340
|
105
|
25
|
200
|
220
|
340
|
120
|
32
|
220
|
230
|
340
|
120
|
40
|
240
|
240
|
355
|
135
|
50
|
270
|
300
|
355
|
135
|
65
|
300
|
340
|
360
|
140
|
80
|
330
|
360
|
395
|
17
|
100
|
380
|
400
|
185
|
|
125
|
450
|
415
|
215
|
|
150
|
500
|
430
|
225
|
|
200
|
550
|
495
|
260
|
|
250
|
650
|
545
|
310
|
|
300
|
800
|
600
|
355
|
|
350
|
850
|
640
|
395
|
|
400
|
900
|
690
|
435
|
|
500
|
950
|
-
|
780
|
495
|





