
产品名称:H44W/H不锈钢旋启式止回阀
产品标签:止回阀,不锈钢旋启式止回阀
更新时间:2019/5/25 16:20:08
上一个产品: H44X橡胶瓣止回阀
下一个产品:H72H对夹立式止回阀
在线客服:
在线订购:在线订购
产品详情
试验压力 |
公称压力( MPa ) |
||||
1.6 |
2.5 |
4.0 |
6.4 |
10.0 |
|
壳体试验 |
2.4 |
3.8 |
6.0 |
9.6 |
15.0 |
密封试验 |
1.8 |
2.8 |
4.4 |
7.1 |
11.0 |
阀体质料 |
WCB(C) |
CF8(P) |
CF 8M (R) |
WC6 |
WC9 |
事情温度 |
≤ 425 |
≤ 100 |
≤ 100 |
≤ 550 |
≤ 550 |
适用介质 |
水、蒸汽、油品 |
硝酸类 |
醋酸类 |
水、蒸汽 |
水、蒸汽 |
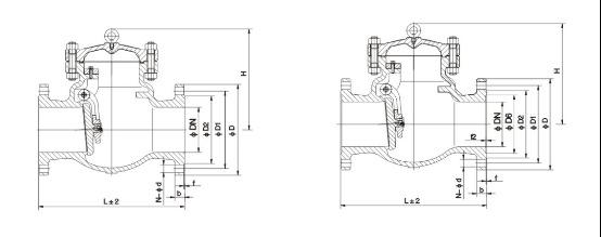
H44W/H不锈钢旋启式止回阀主要形状尺寸
公称通径 |
PN1.6/2.5MPa |
PN4.0MPa |
PN6.4/10.0MPa |
|||||
L |
H |
L |
H |
L |
H |
|||
系列 1 |
系列 2 |
系列 1 |
系列 2 |
|||||
DN40 |
200 |
200 |
130 |
200 |
200 |
130 |
260 |
160 |
DN50 |
230 |
230 |
135 |
230 |
230 |
135 |
300 |
170 |
DN65 |
290 |
290 |
145 |
290 |
290 |
145 |
340 |
180 |
DN80 |
310 |
310 |
175 |
310 |
310 |
175 |
380 |
245 |
DN100 |
350 |
350 |
200 |
350 |
350 |
200 |
430 |
290 |
DN125 |
400 |
400 |
255 |
400 |
400 |
255 |
500 |
320 |
DN150 |
480 |
480 |
320 |
480 |
480 |
320 |
550 |
360 |
DN200 |
495 |
550 |
380 |
533 |
550 |
380 |
650 |
430 |
DN250 |
622 |
650 |
440 |
622 |
650 |
440 |
775 |
505 |
DN300 |
698 |
750 |
480 |
711 |
750 |
520 |
900 |
555 |
DN350 |
787 |
850 |
530 |
838 |
850 |
540 |
1025 |
595 |
DN400 |
864 |
950 |
560 |
864 |
950 |
590 |
1150 |
680 |
DN450 |
978 |
1050 |
620 |
978 |
1050 |
650 |
1275 |
780 |
DN500 |
978 |
1150 |
655 |
978 |
1150 |
720 |
1400 |
970 |

注:以上的产品先容,参数,图片,数据仅用于参考,若是需更准确的资料请咨询公司手艺效劳热线:18117208829




