
产品名称:A49H-40主清静阀
产品标签:清静阀,主清静阀
更新时间:2019/5/4 11:22:24
上一个产品: AY802Y-600清静溢流阀
下一个产品:A61Y-320弹簧微启式清静阀
在线客服:
在线订购:在线订购
产品详情
A49H-40主清静阀产品概述
本阀主要用于电站锅炉、压力容器、减温减压装置上使用,避免压力凌驾允许最高压力值,包管装备清静运行。
结构简述
1、当介质升高到整定压力时,冲量清静阀翻开,介质从脉冲管进入主清静阀的活塞室,推动活塞下降,使阀门自动翻开,当冲量阀关闭时,阀瓣又自动关闭。
2、 密封面用钻基铬镍不锈钢堆焊而成,阀瓣经热处置惩罚,提高了耐磨性和抗冲蚀性。
1、当介质升高到整定压力时,冲量清静阀翻开,介质从脉冲管进入主清静阀的活塞室,推动活塞下降,使阀门自动翻开,当冲量阀关闭时,阀瓣又自动关闭。
2、 密封面用钻基铬镍不锈钢堆焊而成,阀瓣经热处置惩罚,提高了耐磨性和抗冲蚀性。
![]() |
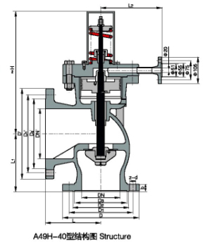
主要形状及毗连尺寸
型号
|
公称通径
|
毗连尺寸
|
||||||||||||||
L
|
L1
|
L2
|
H
|
D
|
D1
|
D2
|
b
|
z-d
|
DN
|
D
|
D1
|
D2
|
b
|
z-d
|
||
A49H-4
|
150
|
220
|
230
|
240
|
486
|
300
|
250
|
204
|
30
|
8-25
|
200
|
360
|
310
|
278
|
34
|
12-25
|
A49H-4
|
200
|
270
|
295
|
330
|
615
|
375
|
320
|
260
|
38
|
12-30
|
300
|
485
|
430
|
390
|
40
|
16-30
|
A49H-4
|
250
|
300
|
350
|
370
|
646
|
445
|
385
|
313
|
42
|
12-34
|
350
|
550
|
490
|
450
|
44
|
16-34
|
注:以上的产品先容,参数,图片,数据仅用于参考,若是需更准确的资料请咨询公司手艺效劳热线:18117208829





